Die zwei Schulanlagen Mühlematt und Bleichematt in Biberist sollen zu einem Campus zusammenwachsen. Mit der Erweiterung um mehrere Unterrichtsräume, eines Mehrzwecksaals für Schule und Gemeinde, einer Turnhalle und der Bibliothek soll der gravierende Platzmangel behoben werden. Dabei steht das pädagogische Konzept im Zentrum: Jeweils zwei Jahrgänge bilden ein Cluster, die Betreuung soll in die Unterrichtsstrukturen integriert werden, sodass die Anforderungen einer Ganztagesschule erfüllt sind. Die vielschichtigen und komplexen Anforderungen verschiedener Anspruchsgruppen bedeuten grosse Herausforderungen in den Bereichen Städtebau, Architektur und Funktionalität.
Als Ersatzteam in der Präqualifikation zum Studienauftrag sind wir noch knapp nachgerutscht und durften uns doch noch dieser spannenden Aufgabe stellen. Und wir konnten die Jury von unserem Ansatz überzeugen:
«Das Projekt überzeugt durch eine klare Gesamtorganisation, die Schule, öffentliche Nutzungen und Aussenräume zu einem stimmigen Campus verbindet. Der Zentrumsbau bildet einen markanten Auftakt und stärkt die Schnittstelle zwischen Schule und Öffentlichkeit. Insgesamt besticht das Konzept in seiner Grundhaltung und wird zur Weiterbearbeitung empfohlen.» (aus dem Jurybericht)



Der Neubau des Cluster 0 mit Schulverwaltung und clusterübergreifender Betreuung bildet das Herzstück der Anlage im Zentrum der Schule. Hier befinden sich der Mehrzwecksaal, die Bibliothek und das Cluster 0 (Schulverwaltung). Die öffentlichen Nutzungen (Bibliothek, Gemeindesaal, Sporthallen) konzentrieren sich an der Schnittstelle zwischen Schulanlage und Schachenstrasse mit grosser Parkierungsanlage und sind damit sowohl für schulische Nutzungen als auch für die Öffentlichkeit ideal erschlossen und multifunktional verwendbar. Die Überlaufräume B0 befinden sich in unmittelbarer Nähe zum MZS, sodass diese ebenfalls als Mittagstisch dienen können.
Die Nähe zwischen Turnhalle und Mehrzwecksaal, die beide dem Cluster 0 angegliedert sind, erlaubt Synergien in der Nutzung und in der Ausstattung. Beide Hallen sind zum Chilbiplatz ausgerichtet und können zu diesem Anlass in die Festlichkeit miteinbezogen werden.

Kern des angestrebten pädagogischen Konzeptes, und in dieser Hinsicht Alleinstellungsmerkmal der Schule Biberist, ist die selbstverständliche räumliche und funktionale Integration der Betreuung in die Unterrichtsstruktur. Dies wird im Projekt mit einer flexibel nutzbaren Schullandschaft erreicht. Hohe innenräumliche Qualitäten sorgen dafür, dass sich sowohl Kinder als auch Erwachsene wohl fühlen. Gedämpfte Akustik in Unterrichts- und Korridorräumen, angenehme Tageslichtsituation und gutes Raumklima tragen zum Komfort bei.
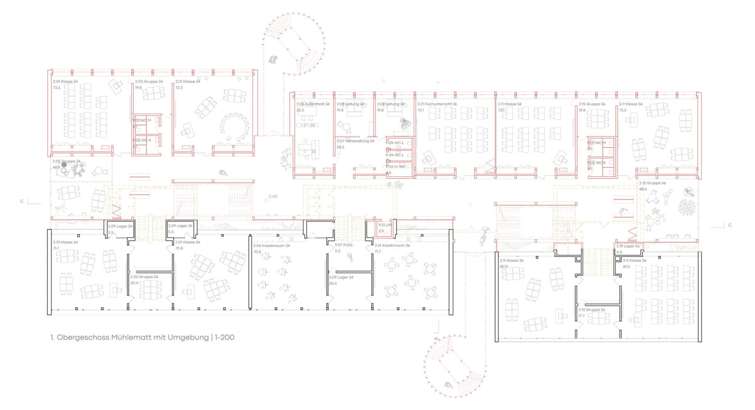
Mit den nordseitigen Anbauten sowohl im Bleichematt als auch im Mühlematt werden die schmalen Bestandsbauten durch eine weitere Raumschicht mit Unterrichtszimmer ergänzt, dazwischen entsteht ein vielfältig nutzbarer Erschliessungsraum als offene Lernlandschaft. Die Unterrichtscluster profitieren von räumlicher Nähe und flexiblen Strukturen, auch für sich wandelnde didaktische Anforderungen. Aussenliegende Wendeltreppe bieten einen unmittelbaren Zugang aus den Unterrichtsclustern in den Aussen- und Grünraum. Breite Podeste laden ein zum Verweilen hoch über dem Boden.
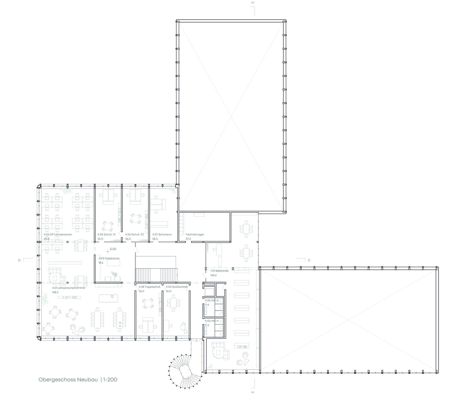
Mit der Zusammenführung der Schulen ist ein Zentrum, ein gemeinsamer Treffpunkt für die Lehrpersonen von grösster Bedeutung. Mit dem Neubau nördlich der 3fach-Turnhalle wird ein zentral gelegenes Cluster 0 (Aufenthalt / Arbeitsplätze Lehrpersonen), als Herz der Anlage, geschaffen. Im Obergeschoss des dreigliedrigen Gebäudes befindet sich die komplett frei unterteilbare Raumlandschaft für Schulleitung, -Verwaltung und die Lehrpersonen. Die Räume bieten eine wohnliche Atmosphäre mit idealem Sichtbezug zu den Schulhäusern.
Durch die mittige Lage zwischen den Häusern Bleichematt und Mühlematt wird das Cluster 0 zum Treffpunkt Primarschule. Der Austausch und die Zusammengehörigkeit der Lehrpersonen sowie die Nähe zur Schulleitung wird begünstigt und gefördert.






