"Mit dem Aufruf «Platz da!» fordern die Projektverfassenden die Bereinigung der aussenräumlichen, bautechnischen, funktionalen und architektonischen Mängel ein. Durch den Rückbau von Trakt 3 aus dem Jahr 1979, wird ein grosszügiger Pausenhof geschaffen, ab welchem die Erschliessung der Schulbereiche erfolgt. Der vorgeschlagene Neubau am Höheweg folgt der Ausrichtung der bestehenden Aula und schafft die Adressierung der Schulanlage. Richtigerweise werden die Bibliothek und die Aula über den Pausenhof erschlossen und zeigen sich als öffentlich zugängliche Nutzungen zur Strasse hin. In den beiden Obergeschossen werden Klassenzimmer angeboten.

Schule Bodenacker Schwarzplan
Schule Bodenacker Visualisierung innen

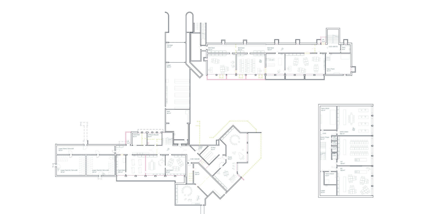
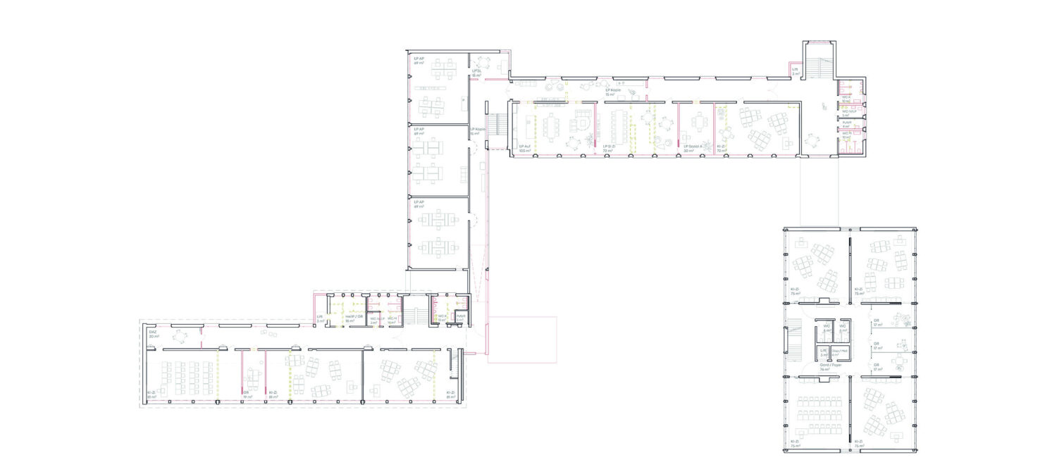
Im Untergeschoss des fingerförmigen Erweiterungsbaus der 80er Jahre werden die Musikräume angeordnet und natürlich belichtet. Die dafür vorgeschlagene Integration vom Lichthof in die Umgebungsgestaltung und das damit verbundene Sichtbarmachen der Nutzungen, zeigt die verspielte Herangehensweise der Projektverfassenden. Damit bestehende Flächen optimal genutzt sind, werden die Spezialunterrichtsräume in den Untergeschossen angeboten. In den Obergeschossen werden Korridorflächen zu Nutzflächen für die Lehrpersonen vorgeschlagen und damit ein Beitrag zur Suffizienz geleistet. In gleicher Selbstverständlichkeit werden auch die Mittel im architektonischen Auftritt angewendet. Die bestehenden Bauten sollen ihren Erinnerungswert erhalten, das neue Gebäude steht mit einer grünen, druckimprägnierten Holzfassade in die Reihe ein."
(aus dem Jurybericht)

Schule Bodenacker Grundriss 1 OG
Schule Bodenacker Grundriss EG
Schule Bodenacker Grundriss UG
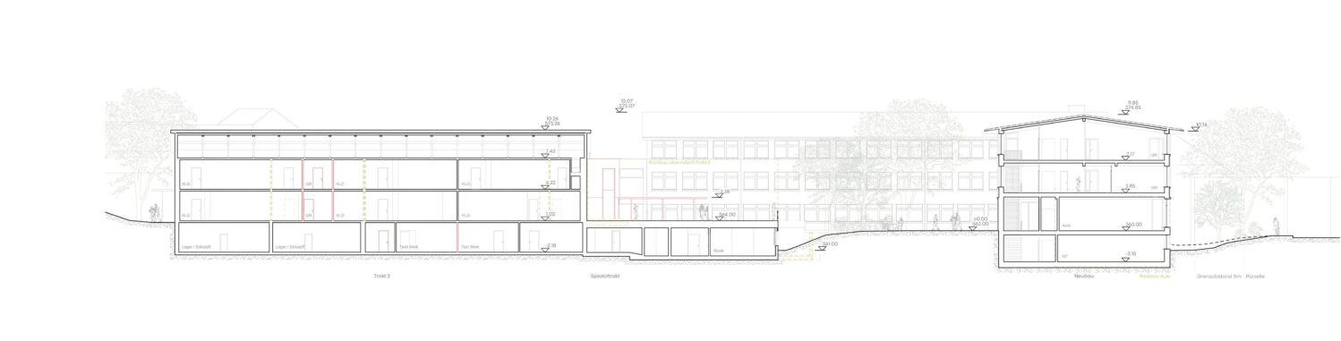
Schule Bodenacker Schnitt A
Schule Bodenacker Situation 500 RGB

"Die Projektverfassenden akzeptieren die bestehenden, zeittypischen Bauten und schaffen mit gut gewähltem Pragmatismus und dem bescheidenen Auftritt des Neubaus ein unaufgeregtes Ensemble.

Einer der Leitsätze der Nachhaltigkeit, die Suffizienz, wird mit dem Vorschlag der Verdichtung vorbildlich umgesetzt. Das resultiert in einem tiefen Energieaufwand für die Erstellung und den Betrieb.

Das Projektteam versucht mit möglichst wenig Geschossfläche auszukommen. Grosse Teile des Bestandes werden weitergenutzt und die Nutzungen wo möglich verdichtet. Die übrigen Nutzungen werden in einem kompakten Neubau angeordnet. Der Beitrag enthält klar weniger Geschossfläche als der Durchschnitt der acht Projekte. So resultieren die tiefsten Kosten sämtlicher Beiträge."
(aus dem Jurybericht)

Schule Bodenacker Schnitt Ansicht 50
Schule Bodenacker Visualisierung aussen 2 breit
Schule Bodenacker Visualisierung aussen 1 breit
Schule Bodenacker Schema Etappierung