Das Gebäude an der Breitfeldstrasse 56 im Berner Breitenrainquartier wurde 1959 erstellt. Das Haus ist Teil einer Gebäudezeile und Nachbarbau des denkmalgeschützten Kopfbaus zum Stauffacherplatz. Im Erdgeschoss und Untergeschoss der Liegenschaft befindet sich aktuell die Autogarage für die Firmenfahrzeuge der BKW. Zukünftig sollen die Fahrzeuge andernorts gewartet werden, womit Erd- und Untergeschoss der Liegenschaft frei werden. Die Liegenschaft weist aufgrund seiner zeittypischen Bauweise und der in die Jahre gekommenen Bausubstanz einen erheblichen Sanierungsbedarf auf. Das Grundstück verfügt über Ausnutzungsreserven.

In einer Studie wurde geprüft, ob und in welcher Form eine Sanierung und Umnutzung des Bestandes möglich und sinnvoll ist. Dabei zeigte sich, dass die Wohnungen in den Obergeschossen aufgrund der schlechten Bausubstanz ersetzt werden müssen. Das Erd- und das Untergeschoss befinden sich hingegen dank ihrer massiven Bauweise in einem guten Zustand und bilden ein solides statisches Fundament. Darüber wird ein viergeschossiger Neubau in Holz erstellt.

Breitfeldstrasse 56 Luftbild
Breitfeldstrasse 56 Hof

Charakteristisches Merkmal in der Gestaltung ist das aus­senliegende Treppenhaus, das eine effiziente Raumnutzung erlaubt und gleichzeitig zwischen Innen und Aussen vermittelt. Das Mansarddach ermöglicht ein zusätzliches Dachgeschoss und fügt sich harmonisch in die bestehende Dachlandschaft der Umgebung ein. Die aktuell ungenutzte grosszügige Dachfläche im ersten Obergeschoss wird zur gemeinschaftlichen, begrünten Terrasse als lebendiger Treffpunkt und Aufenthaltsort der Bewohnenden.

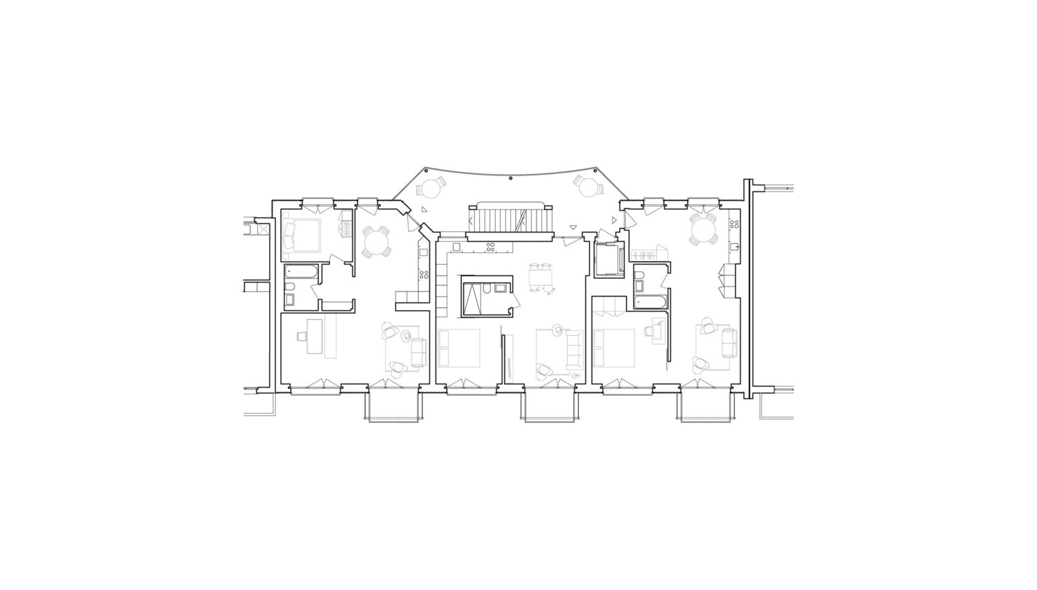
Das Wohnhaus bietet einen vielfältigen Wohnungsmix mit Einheiten zwischen 2.5 und 5.5 Zimmern. Vier Maisonettewohnungen mit jeweils 4.5 Zimmern sowie eine 5.5-Zimmer-Wohnung im ersten Obergeschoss schaffen ein Angebot an Familienwohnraum, der zuletzt in der Innenstadt immer mehr am Verschwinden ist.

Breitfeldstrasse 56 Strasse

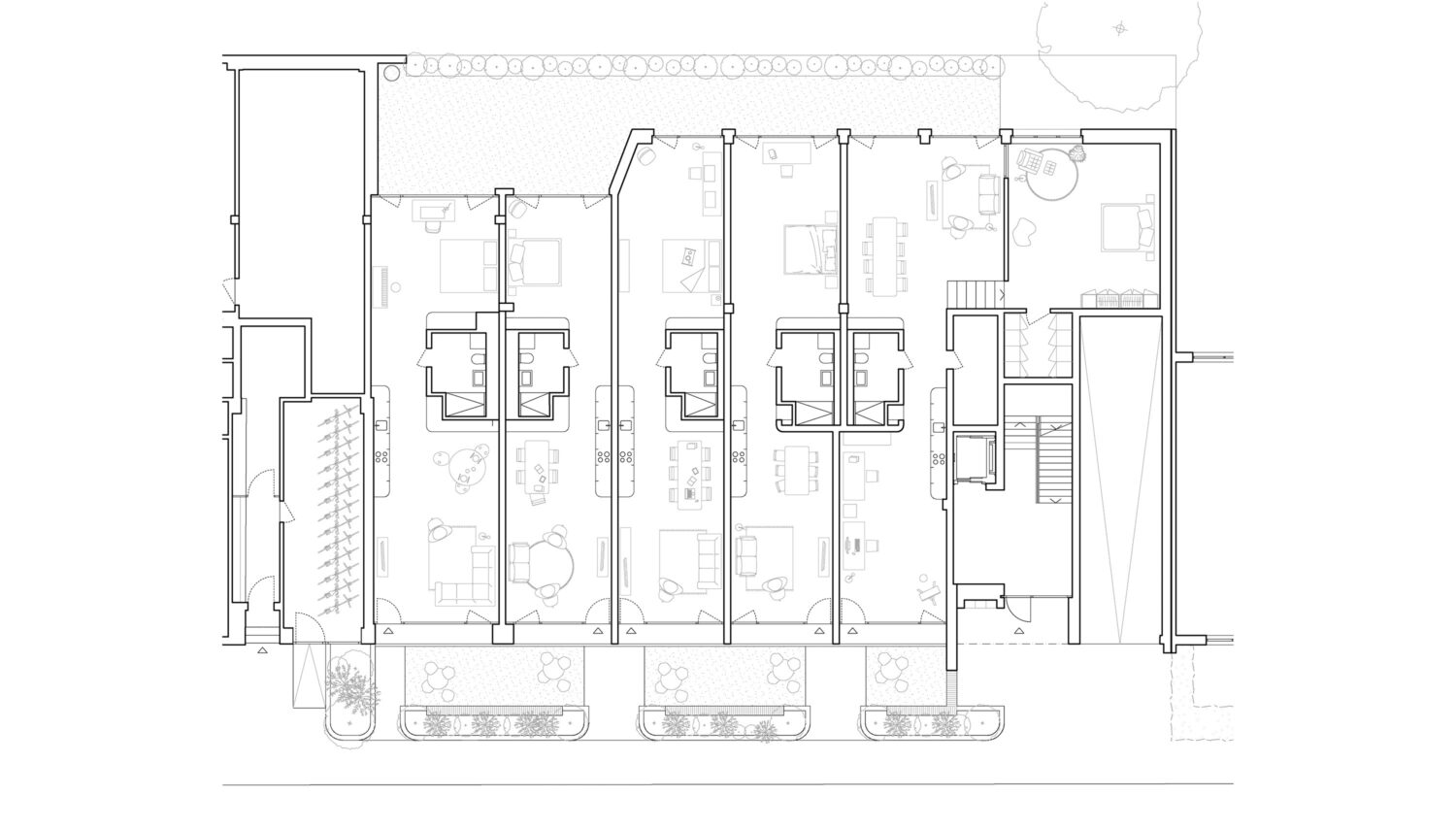
Im Untergeschoss werden nur geringfügige bauliche Anpassungen vorgenommen: Haustechnische Installationen werden erneuert und ergänzt und Kellerabteile erstellt. Im Erdgeschoss entstehen fünf neue Loftwohnungen in Schottenbauweise. Die Raumhöhe von rund 3.30m schafft ein grosszügiges Raumgefühl Die schlanken, langgezogenen Grundrisse werden durch die Kombination von Nasszelle und Küche im Grundriss klar gegliedert. Der Wohn- und Essbereich orientiert sich zur Strasse, während der Schlafbereich zum ruhigen Innenhof ausgerichtet ist.

Die Massivbauweise der Untergeschosse und des Erdgeschosses, bestehend aus Träger und Stützen, weist eine gute Bausubstanz auf und bleibt bestehen. Das bestehende Treppenhaus wird rückgebaut. Die neue Treppenanlage wird gedreht und neu positioniert. Der Bestand wird energetisch saniert: Die Decke über dem ersten Untergeschoss sowie die Aussenwände werden gedämmt. Ab dem ersten Obergeschoss ist ein Holzskelettbau mit Holzdecken vorgesehen. Das Stützraster orientiert sich am bestehenden Tragwerk und ermöglicht eine hohe Flexibilität in der Grundrissgestaltung.

BRE Erdgeschoss
BRE 1 Obergeschoss
BRE 2 Obergeschoss
BRE 3 Obergeschoss
BRE Dachgeschoss
BRE Nordfassade
BRE Suedfassade
Breitfeldstrasse 56 Ansicht Sued