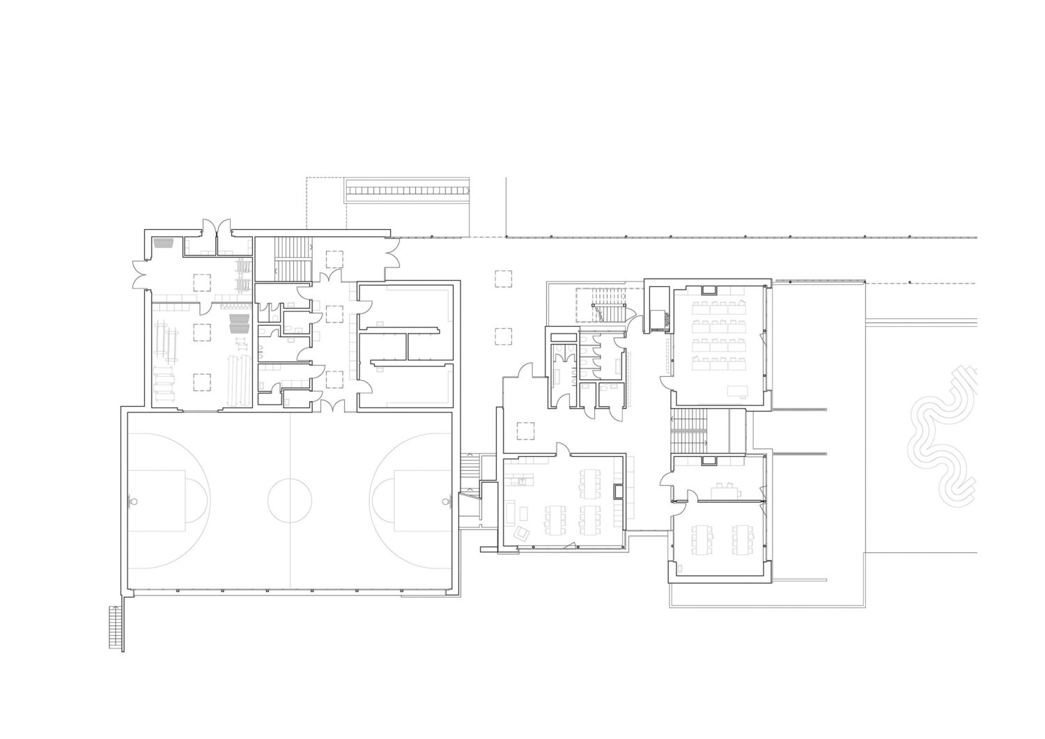
Die Schulanlage Melchenbühl wurde 1971 gebaut. Seither wurden am Gebäude keine grundlegenden Sanierungsarbeiten vorgenommen. Das Schulhaus vermag den räumlichen und funktionalen Anforderungen von Schule, Kindergarten und Tagesschule mittel- bis langfristig nicht mehr zu genügen. Die vorhandenen Räumlichkeiten können den zukünftigen Schulraumbedarf mit zusätzlichen Klassen nicht mehr decken. Auch hinsichtlich ihrer energetischen, technischen und betrieblichen Eigenschaften ist die Schulanlage veraltet und auf einen zeitgemässen Stand zu bringen. Im Jahr 2017 konnte das Generalplanerteam um die Naos Architekten AG das zweistufige Planerwahlverfahren für sich entscheiden.


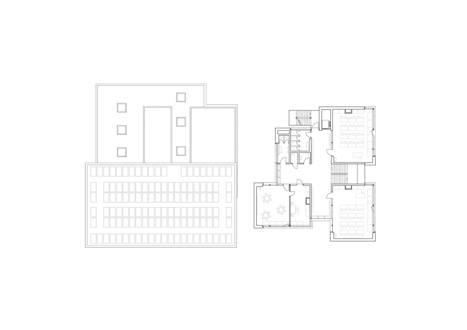
Im Jahr 2020 hat die Gemeinde Muri das ehemalige Kirchgemeindehaus, neu Pavillon Melchenbühl genannt, auf der Nachbarparzelle im Baurecht erworben. Bibliothek, Tagesschule und die dritte Kindergartenklasse, als funktional eigenständige Nutzungseinheiten, sollen in den Räumlichkeiten des ehemaligen Kirchgemeindehauses Platz finden.