Als künftiges Zentrum der Primarschulen in Düdingen ist die Schule innen- wie aussenräumlich attraktiv und bietet ein ideales Lern- und Aufenthaltsumfeld.

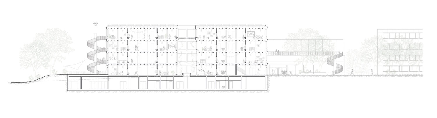
Das Raumprogramm gliedert sich den Nutzungen entsprechend in zwei Volumen, die durch einen gemeinsamen Sockel zusammengehalten werden. Proportionen und Volumen orientieren sich an der Körnung des Bestandes und entwickeln die Anlage aus den 1970er Jahren in selbstverständlicher Weise weiter. Die Neubauten sind topografisch gut eingebettet und nutzen den Niveausprung optimal aus. Eine breite Aussentreppe mit Sitzstufen zwischen den Neubauvolumen verbindet die verschiedenen Aussenniveaus miteinander.

Situation 1000
Situation

Die Schulräume konzentrieren sich in einem 4-geschossigen kompakten Neubau, mit klarer und doch flexibler Grundrissstruktur, was einen ökologischen und ökonomischen Ansatz gewährleistet. Die ausserschulische Betreuung (ASB) im Sockelgeschoss umschliesst einen attraktiven und naturnahen Aussenraum.

Die Situierung von Aula und Turnhalle in einem eigenen Gebäude ermöglichen einen autonomen Betrieb der Hallen. Die Dachfläche wir als zusätzlicher Pausen- und Sportbereich angeboten.

Auf eine bauliche Anbindung zwischen Bestand und Neubau wird verzichtet. Die Identität und Selbständigkeit des 2009 sanierten Schulhauses werden gewahrt und teure bauliche Eingriffe vermieden. Im Erdgeschoss wird südseitig ein Zugang geschaffen, der eine nahe Anbindung an die Neubauten ermöglicht. Der stark frequentierte öffentliche Fussweg über das Areal bleibt erhalten.

Grundriss UG
Grundriss EG

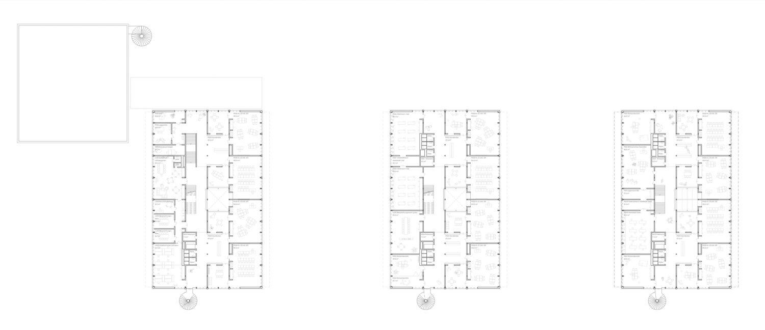
Auf den vier Etagen des neuen Schulhauses befinden sich jeweils je vier Klassenräume. Die Räume der Kindergartenklasse im Erdgeschoss sind identisch mit den darüberliegenden Klassenzimmern und ermöglichen die Einführung der Basisstufe oder anderer Unterrichtsformen. Die Klassenräume, welche primär morgens belegt sind, sind allesamt gegen Osten ausgerichtet. Eine ideale natürliche Belichtung in allen Jahreszeiten ist gewährleistet. Westseitig befinden sich die Spezialunterrichtsräume.

Räume der gemeinschaftlichen Nutzung (Aula und Turnhalle), die stark auch von Sekundärnutzenden frequentiert werden, sind über einen autonomen Eingang und Vorzone erreichbar. Diese Nutzungen kann unabhängig der schulischen Aktivitäten stattfinden.

Die Räumlichkeiten der ASB umschliessen den südwestlich gelegenen Aussenraum. Die Räume werden primär über Mittag und nachmittags belegt und profitieren wiederum von einer idealen natürlichen Belichtung. Die Haupterschliessung erfolgt über den Pausenplatz im EG oder direkt im Sockelgeschoss in die Garderoben: Hier kommen die Kinder an, mit Toilette und Waschgelegenheit in unmittelbarer Nähe. Die angrenzenden Hausaufgaben- und Essensräume werden als kontinuierliche Raumfolge mit flexibler Unterteilung verstanden. Das eingezogene Sockelgeschoss ermöglicht einen fliessenden Übergang zwischen innen und aussen und bietet grosse Aufenthaltsqualität im gedeckten Bereich. Mit weiteren Spiel-, Bewegungs- und Ruheräumen mit unterschiedlichsten Eigenschaften und Charakteren, wird den Kindern eine Vielfalt an Aufenthalts- und Beschäftigungsmöglichkeiten geboten.

Grundriss 1 3 OG
Innenvisu 1

Pädagogisches Konzept

Die Klassenräume des Zyklus 1 und 2 werden flexibel und nutzungsneutral ausgestaltet, sodass sowohl klassischer Jahrgangsunterricht mit Kindergarten als auch Basisstufenunterricht möglich ist.

Zwei Klassenverbände bilden jeweils ein Cluster mit gemeinsamem Vorbereich mit Garderobe. Innerhalb des Clusters ist eine grosse Nutzungsvariabilität gegeben, die vielfältige Unterrichtsformen und Anpassungen an zukünftige Entwicklungen ermöglicht.

Jeder Klassenraum verfügt dabei über eine Grösse von rund 90m2 und einen direkt angeschlossenen attraktiven Gruppenraum von rund 30m2. Die Räume im Erdgeschoss eignen sich besonders für die kleinsten Kinder des Kindergartens: Sie verfügen alle über direkte Zugänge in einen geschützten Aussenbereich.

Die Grundrissorganisation um eine zentrale Treppenanlage fördert den Austausch. Die mäandrierende Erschliessungsschicht und der mittige Lichthof schaffen spannende Blickbezüge über verschiedene Geschosse hinweg.

Grundriss 2 OG
Schnitt Quer
Schnitt Laengs
Aussenvisu 1